
外観完成予想CG[出典:公式HP]
隅田川に面した分譲タワマン「ブリリアタワー浅草柳橋」(地上34階、最高高さ121.78m)の完成予想図です。日鉄興和不動産と東京建物による浅草橋駅から徒歩5〜6分のタワーマンションで、2026年5月中旬から販売開始予定となっており、現地では躯体工事が始まっています。この記事では同タワマンの概要や建設状況(2025年12月20日撮影)、地図等を載せています。
ブリリアタワー浅草柳橋について

外観完成予想CG[出典:公式HP]
「ブリリアタワー浅草柳橋」はは「東商センタービル」の建替えとなる分譲のタワーマンションで、規模は地上34階、地下1階、高さ119.38m、最高高さ121.78m、敷地面積2,366.65?、建築面積1,108.56?、延床面積2万7427.43?、建築主は東商センタービルマンション建替組合(参加組合員・売主:日鉄興和不動産、東京建物)、設計者はフジタ、IAO竹田設計、施工者はフジタ、竣工予定は2027年4月中旬、入居開始は2027年8月の予定です。
総戸数は267戸 (販売戸数149戸、地権者住戸118戸)で2026年5月中旬から販売開始予定となっています。販売間取りは1K〜3LDK、専有面積は33.15?〜104.30?(一部専有トランクルーム面積1.22?含む)、バルコニー面積は7.26?〜28.66?、サービスバルコニー面積は1.08?〜8.95?です。

敷地概念イラスト[出典:公式HP]
建設地は隅田川に面した場所で、メインエントランスがあるエントリーゾーン、隅田川に面したリバーサイドゾーン、隅田川に繋がるアプローチゾーンに分かれています。リバーサイドゾーンは隅田川テラスに繋がるオープンスペースとなり、アプローチゾーンを通ることで一般の人も往来できるようになります。

フロア概念図[出典:公式HP]
共用施設は2階にメインラウンジ、ワークラウンジ、カンファレンスルーム、17階にスカイビューラウンジ、屋上にスカイデッキが配置されます。3階、4階に自転車置場が設置されますが、隅田川側は住宅フロアとなっています。

エントランス外観完成予想CG[出典:公式HP]
エントランスの完成予想図です。

メインエントランス完成予想CG[出典:公式HP]
メインエントランスです。中に入るとすぐにメインラウンジに繋がるエスカレーターがあります。マンション内にエスカレーターがある物件は希少です。

メインラウンジ完成予想CG[出典:公式HP]
隅田川に面した2階のメインラウンジの完成予想図です。

ワークラウンジ & カンファレンスルーム完成予想CG[出典:公式HP]
メインラウンジの隣にはワークラウンジがあり、その奥にはカンファレンスルームもあります。

スカイビューラウンジ完成予想CG[出典:公式HP]
17階の北東角には東京スカイツリービューとなるスカイビューラウンジが配置されます。

スカイビューラウンジ完成予想CG[出典:公式HP]
隅田川の花火大会も楽しめる場所になります。

スカイデッキ完成予想CG[出典:公式HP]
屋上にはスカイデッキも設けられます。
間取り図

56Qタイプ[出典:公式HP]
スーペリアフロアに配置される56Qタイプの間取り図です。間取りは2LDK+SIC、専有面積は56.43?、バルコニー面積は15.08?(17〜20階)、12.33?(21〜32階)となります。

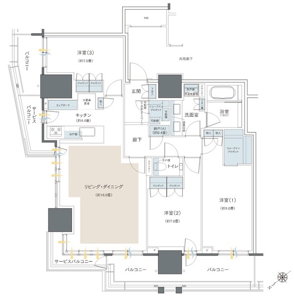
72P1タイプ[出典:公式HP]
スーペリアフロアに配置される72P1タイプの間取り図です。間取りは3LDK、専有面積は72.89?、バルコニー面積は14.53?、サービスバルコニー面積は7.64?となります。

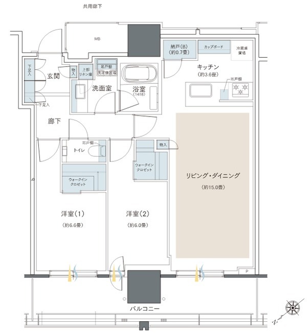
P-72Bタイ[出典:公式HP]
プレミアムフロアに配置されるP-72Bタイプの間取り図です。間取りは2LDK+2WIC+N、専有面積は72.43?、バルコニー面積は15.03?となります。

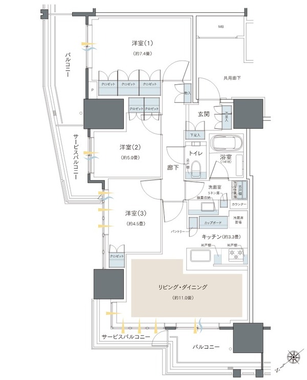
P-104Aタイプ[出典:公式HP]
プレミアムフロアに配置されるP-104Aタイプの間取り図です。間取りは3LDK+WIC+SIC+N、専有面積は104.30?、バルコニー面積は19.01?、サービスバルコニー面積は7.46?となります。
位置図

位置図[出典:公式HP]
建設地はJR総武線・都営浅草線「浅草橋」駅の東側で、隅田川に面した場所となっています。JRの浅草橋駅からは徒歩6分、都営浅草線の浅草橋駅からは徒歩5分の距離となっています。ただし、一番近いA6出口が利用できるのは22時までとなっています。
建設状況

2025年12月20日に隅田川の対岸から撮影した「ブリリアタワー浅草柳橋」(地上34階、最高高さ121.78m)の建設地です。

ちょうど航行していた松本零士氏デザインの船「ホタルナ」と一緒に撮影。日常的にこういった光景がみられる場所になります。

隣のタワーマンションは「ザ・パークハウス 浅草橋タワーレジデンス」(地上20階、高さ66.1m)です。

建設地にズームです。タワークレーン1基で地上躯体工事が始まっています。

東京都心側となる北西側から撮影。こちらにメインエントランスが設けられます。

2階まで建設が進んでいました。

12月21日に「東京スカイツリーイーストタワー」(地上31階、最高たかさ158m)の30階にある無料展望スペースから撮影。「ブリリアタワー浅草柳橋」のタワークレーンと躯体のほんの一部が見えました。

背後に見えているのは日本橋や東京駅周辺の超高層ビル群で、都心側の高層階からは程よい距離間で眺めることができるようになります。

かなり前に東京スカイツリーの天望回廊から撮影した「ブリリアタワー浅草柳橋」の建設地です。隅田川側は両国国技館や江戸東京博物館、東京スカイツリーなどを眺めることができる場所で、隅田川側沿いには首都高向島線が通っているため、常に動きのある景色を楽しむことができます。
地図
物件概要

建築計画のお知らせです。
■物件概要■
名称:ブリリアタワー浅草柳橋
事業名:東商センタービルマンション建替事業
所在地:東京都台東区柳橋二丁目4番2(地番)
交通:都営浅草線「浅草橋」駅 徒歩5分
JR総武・中央緩行線「浅草橋」駅 徒歩6分
用途:共同住宅、駐車場、店舗
総戸数:267戸(販売戸数149戸、地権者住戸118戸)
階数:地上34階、地下1階
高さ:119.38m(最高高さ121.78m)
構造:鉄筋コンクリート造(一部鉄骨造)
耐震性能:免震構造
基礎工法:杭基礎
敷地面積:2,366.65?
建築面積:1,108.56?
延床面積:27,427.43?
建築主:東商センタービルマンション建替組合
参加組合員・売主:日鉄興和不動産、東京建物
設計者:フジタ、IAO竹田設計
施工者:フジタ
工期:2024年4月22日着工〜2027年4月中旬竣工予定
入居:2027年8月下旬予定
出典
▼公式HP:ブリリアタワー浅草柳橋
https://bta.brillia.com/
▼日鉄興和不動産:ニュースリリース(2024年4月22日)
東京都スーパー堤防整備事業および総合設計制度を活用 「東商センタービル」マンション建替事業 工事着工のお知らせ 浅草橋エリアのランドマークとなる地上34階建て、総戸数267戸の免震タワーマンションへ
- カテゴリ
- 台東区